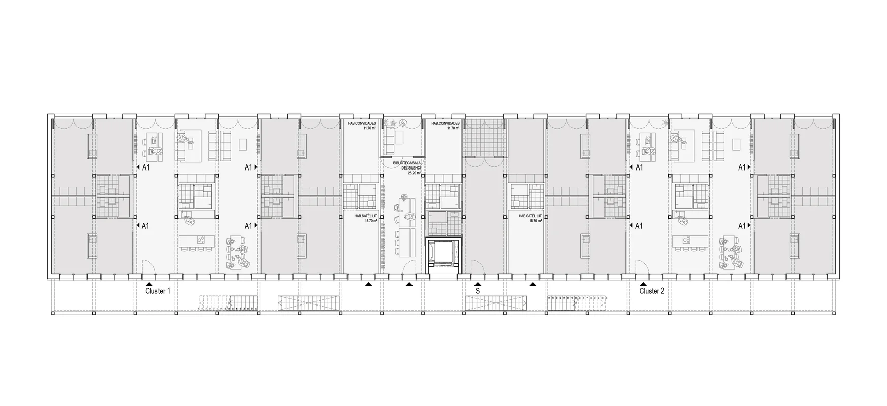
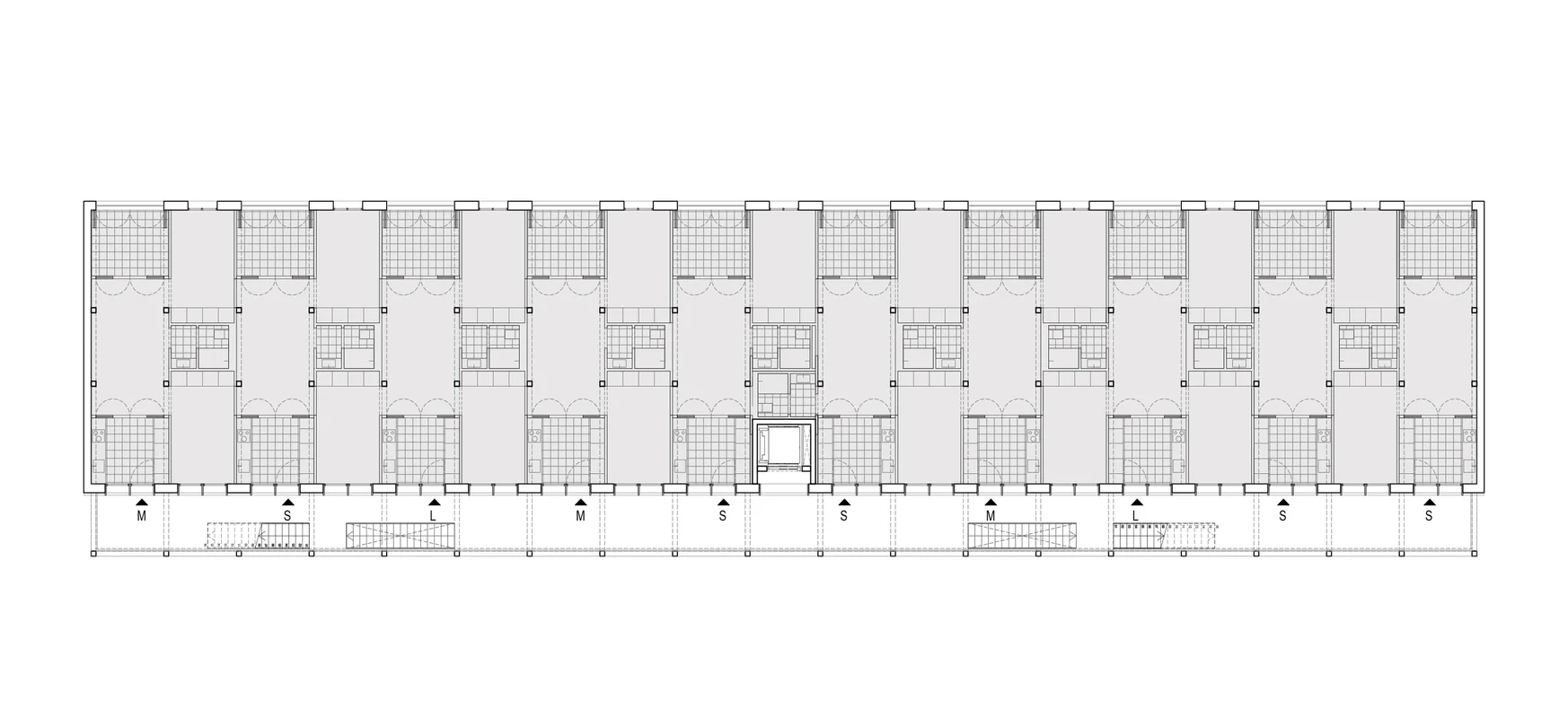
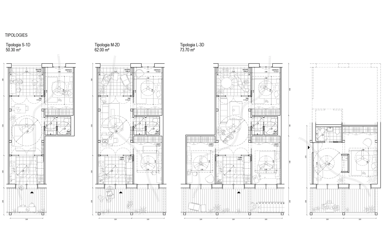
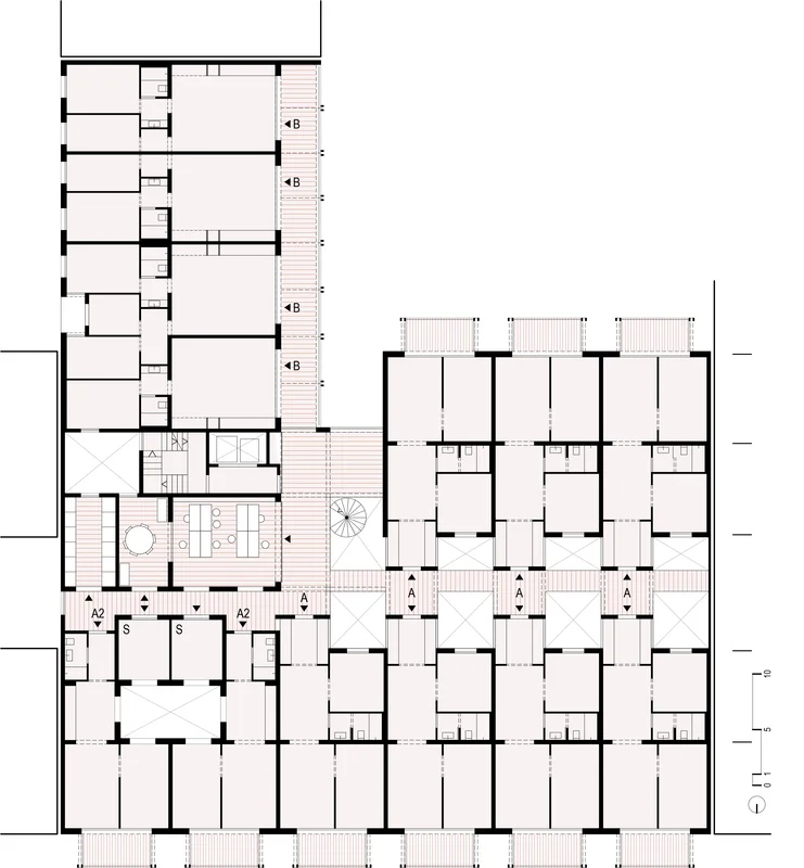
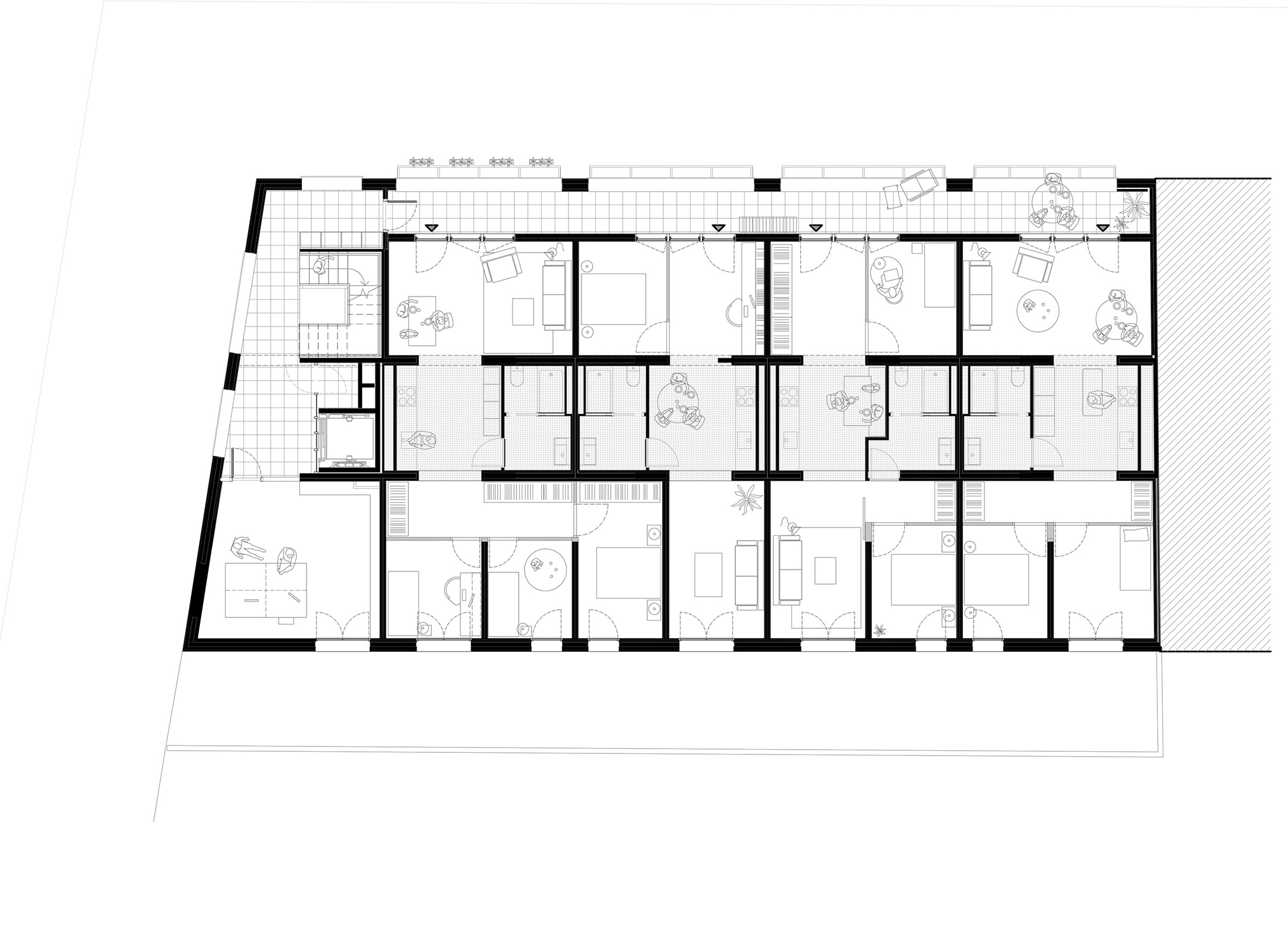
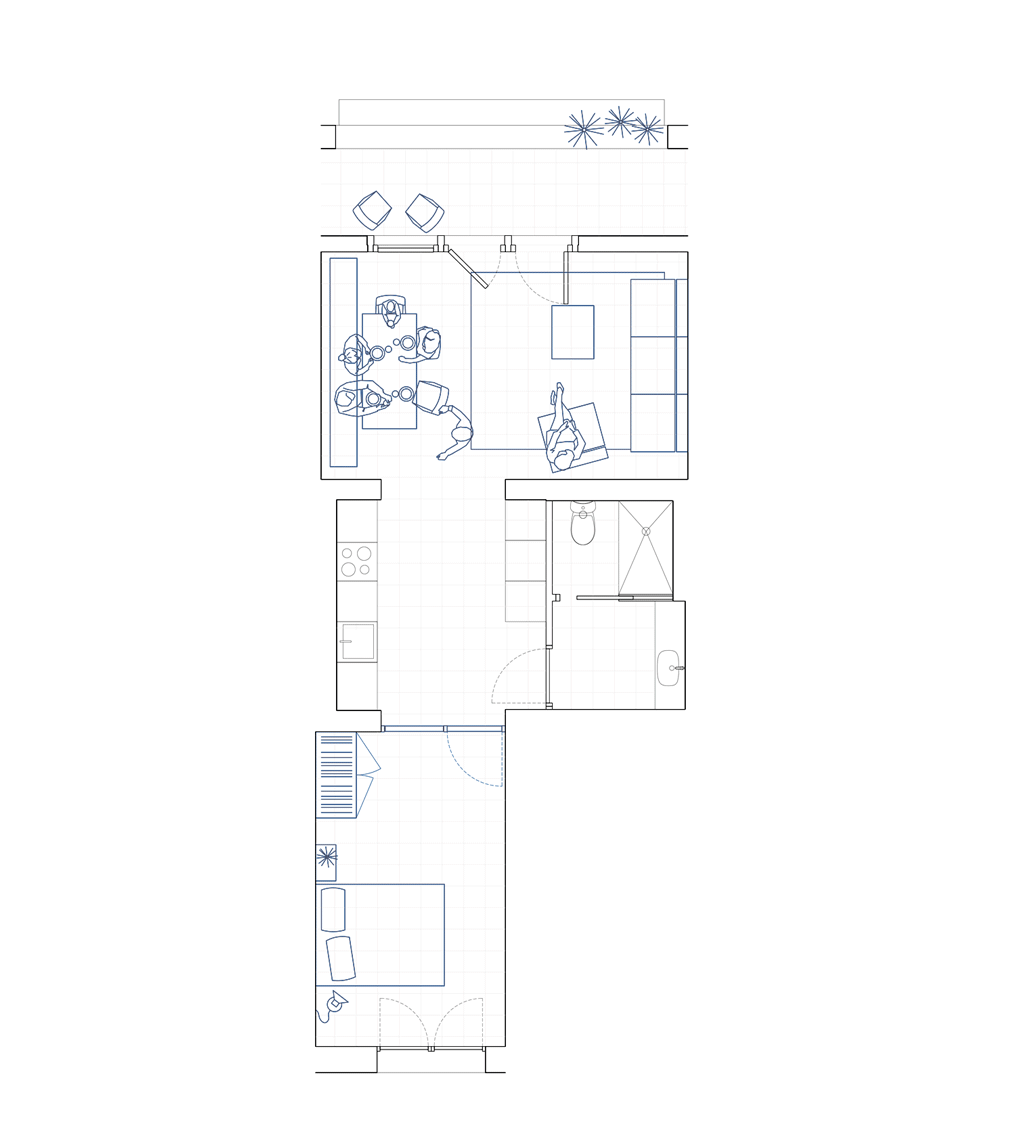
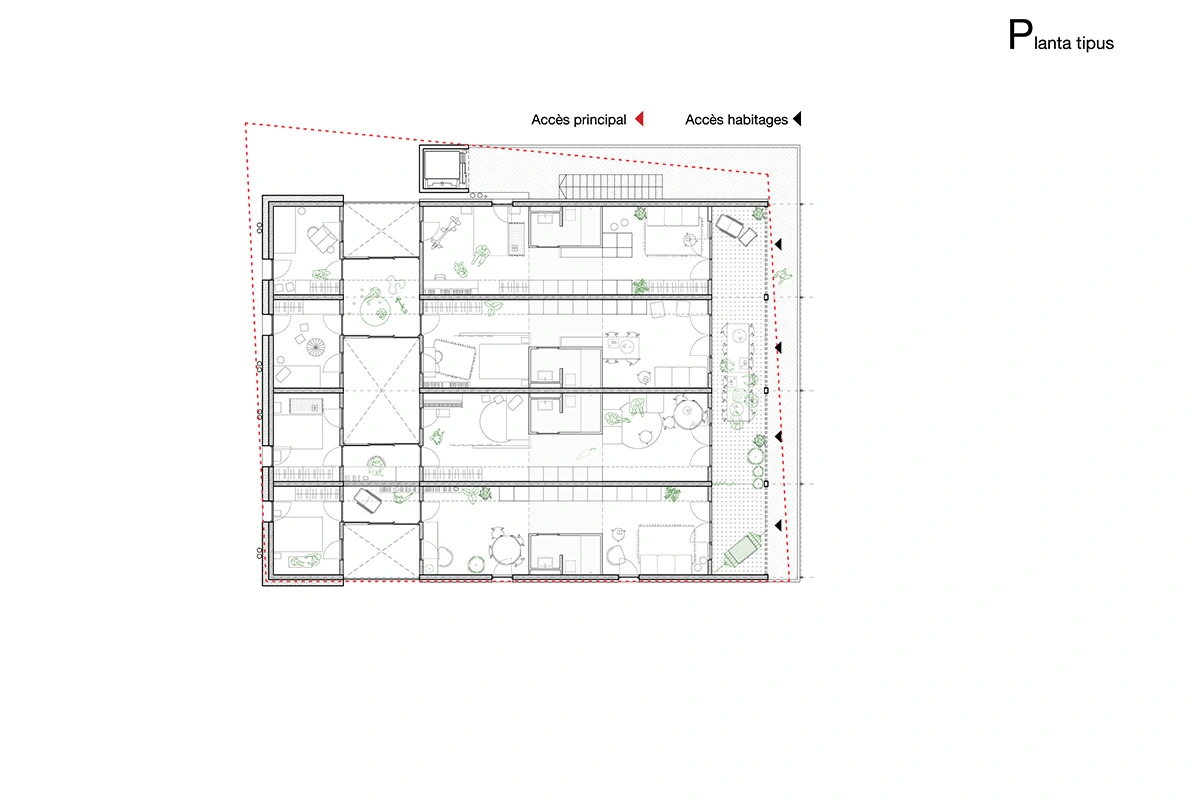
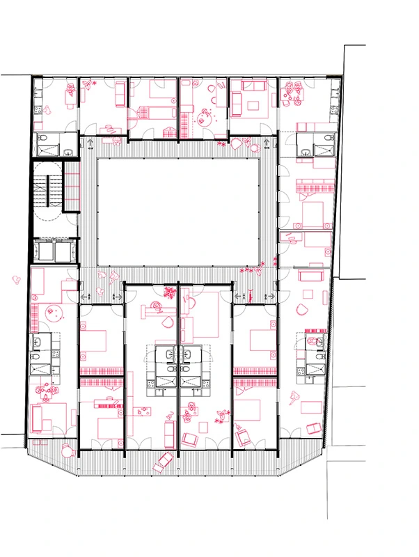
Habitatge cooperatiu Proposem l’habitatge cooperatiu com una alternativa a la producció convencional d’habitatge amb un potencial transformador des de la tinença, l’arquitectura i l’estil de vida. S’ha convertit per nosaltres en un espai d’experimentació i innovació tipològica i de models de convivència, així com també de model energètic i constructiu. Per replicar i fer créixer el model creem, juntament amb altres entitats, La Dinamo Fundació.





































































































































































































































