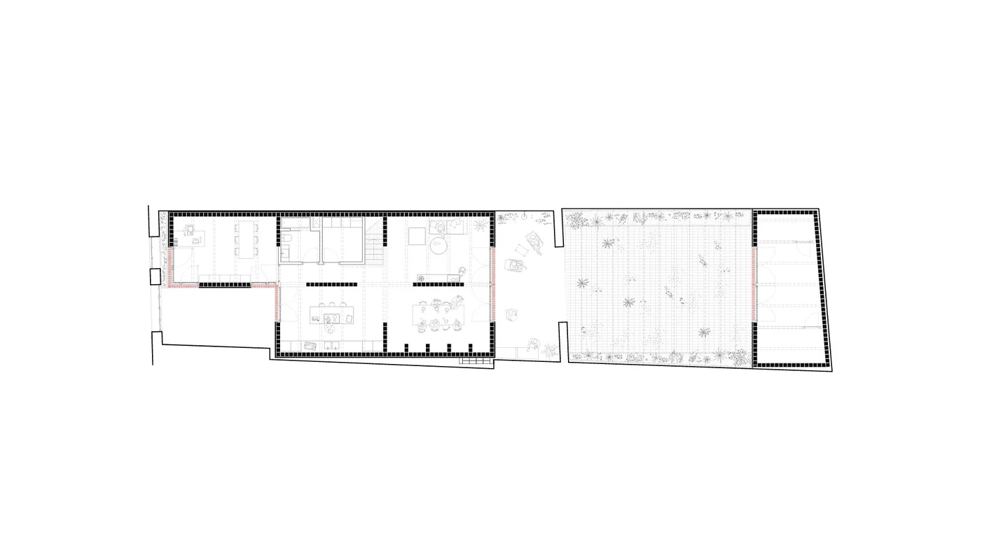
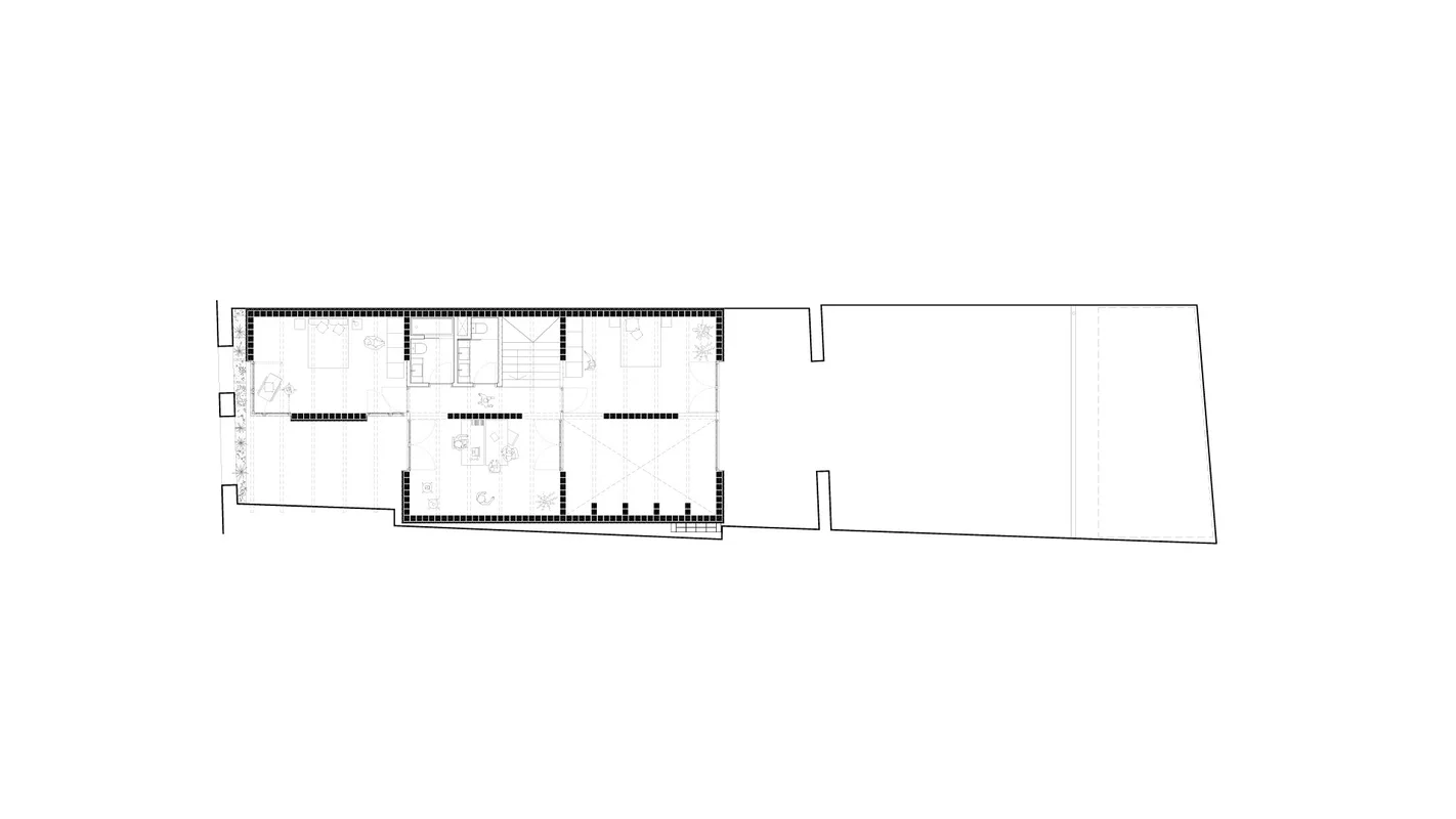
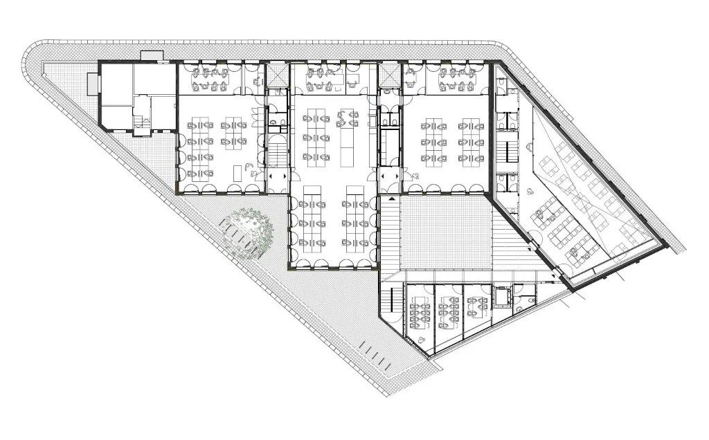
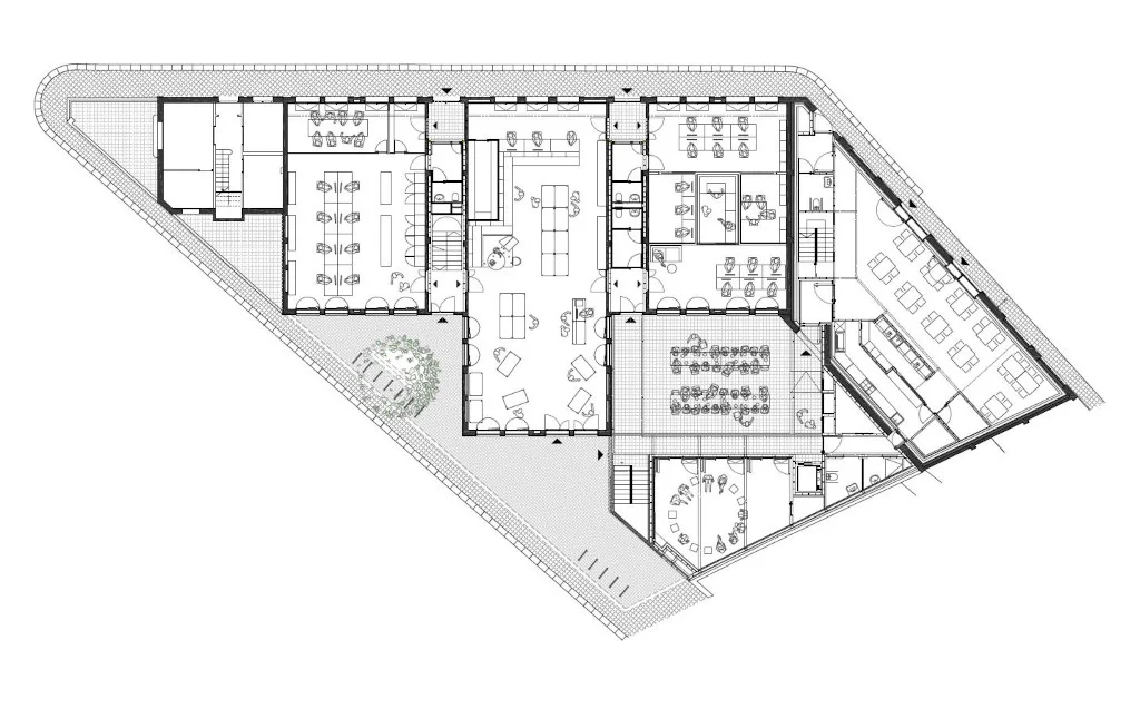
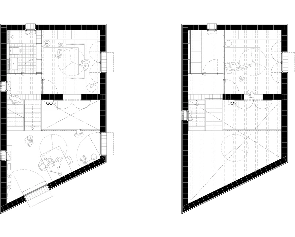
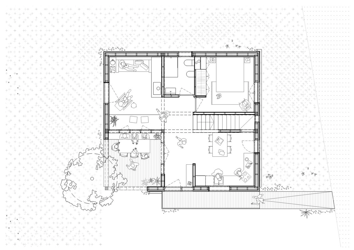
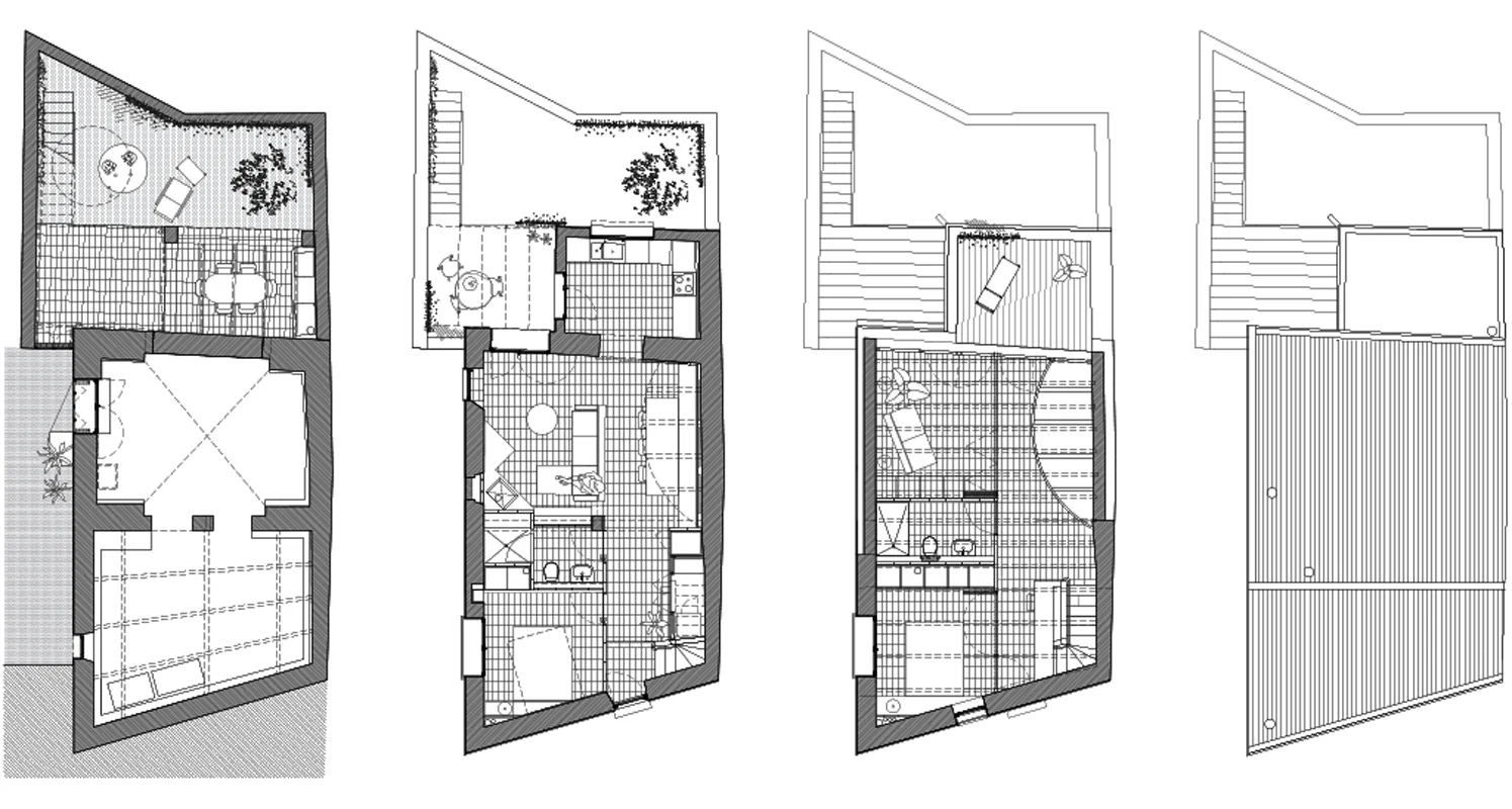
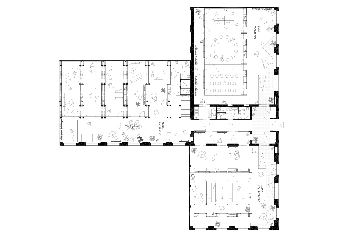
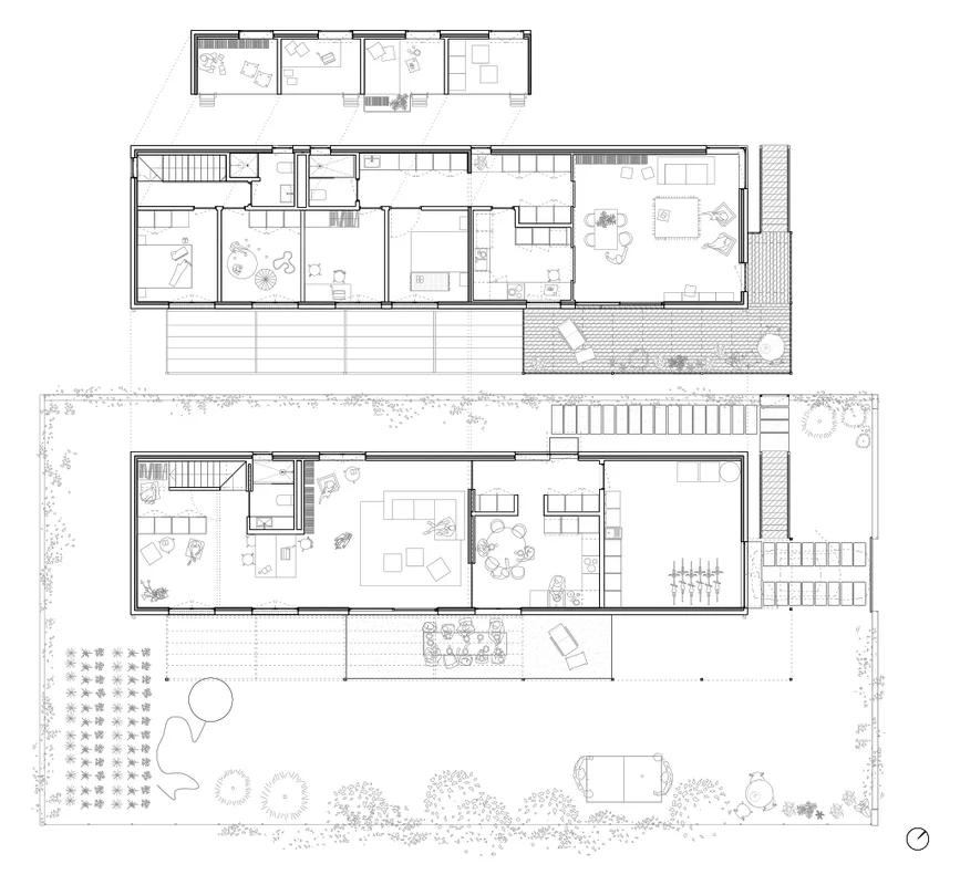
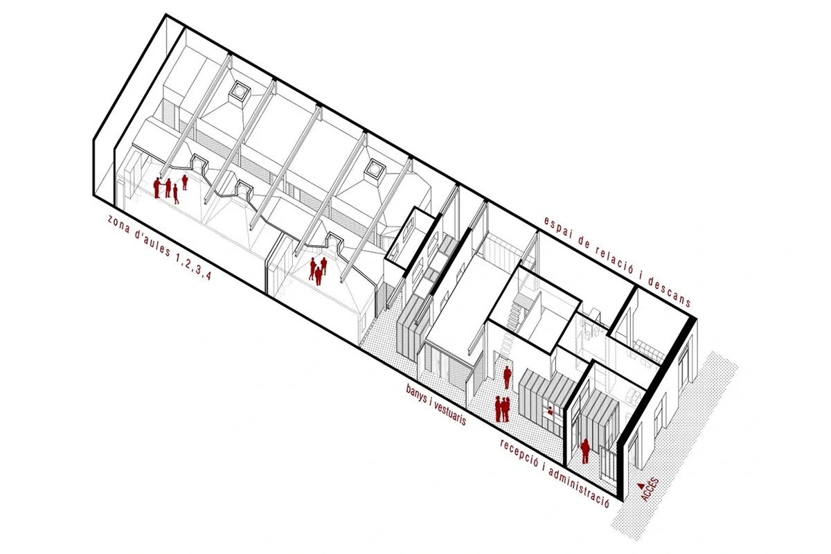
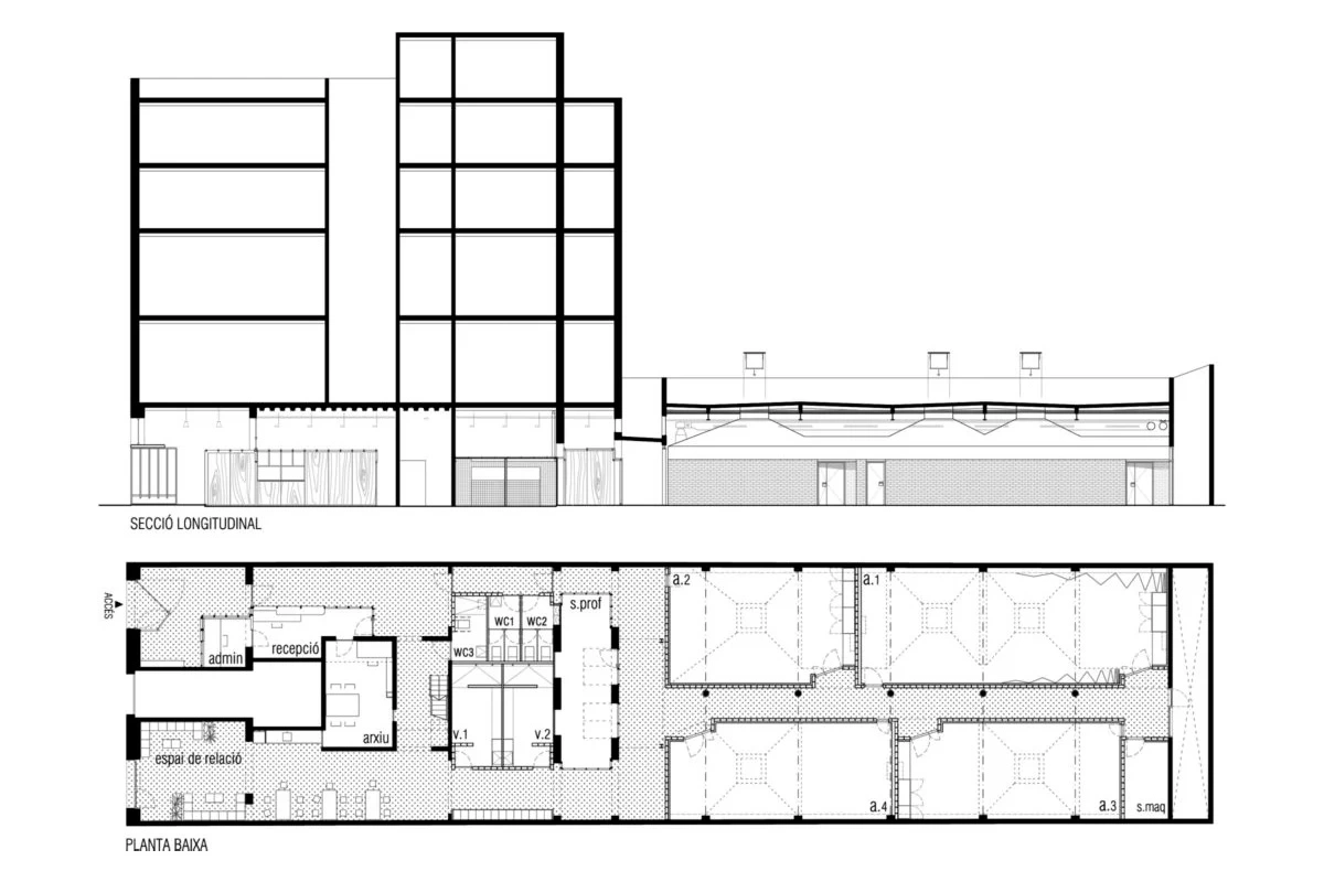
Projectes d'arquitectura Dissenyem els projectes a partir d’un concepte ampli de sostenibilitat on es treballen en paral·lel els vectors energètic, econòmic i social, sempre posant en el centre l’usuari i la comunitat. Projectes de diverses escales, tant d’obra nova com rehabilitació.





























































































































































































































































































































































































































